“Lầu son gác tía” Hoàng thành Thăng Long 1000 năm trước qua hình ảnh 3D

“Lầu son gác tía” Hoàng thành Thăng Long 1000 năm trước qua hình ảnh 3D

Lần đầu tiên hình ảnh về kiến trúc cung điện thời Lý sau hơn 1.000 năm được tái hiện, giúp hình dung rõ ràng hơn, cảm nhận sâu hơn về vẻ đẹp tráng lệ của kiến trúc trong Hoàng cung Thăng Long xưa. Công chúng được thấy hình ảnh 3D phỏng dựng 64 công trình kiến trúc thời Lý tại Hoàng thành Thăng Long.

Những hình ảnh cho thấy tầm vóc quy mô, sự tráng lệ đáng kinh ngạc, chứng tỏ trình độ phát triển văn hóa rực rỡ cũng như kỹ thuật xây dựng, trình độ quy hoạch ở mức đỉnh cao làm ngỡ ngàng giới nghiên cứu, là niềm tự hào của dân tộc Việt Nam, của nền văn hóa Việt Nam. Đây là kết quả nghiên cứu nổi bật trong giai đoạn 10 năm đầu tiên từ khi thành lập (28-4-2011) của các nhà khoa học Viện Nghiên cứu kinh thành (Viện Hàn lâm Khoa học xã hội Việt Nam)

subtitle1.jpg -0

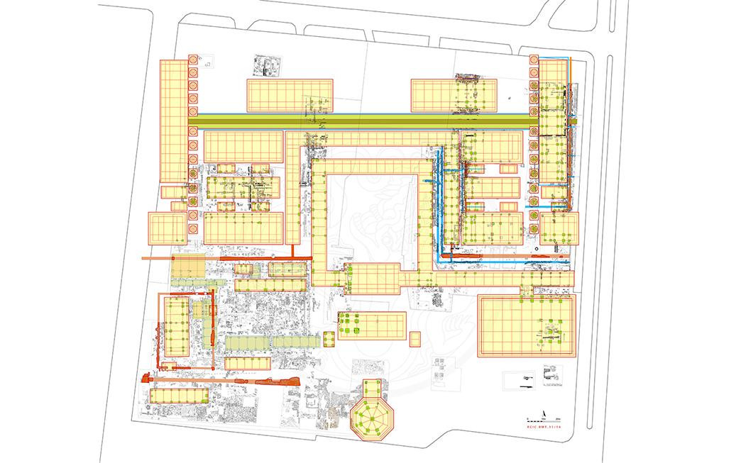
Mặt bằng tổng thể cũng như các công trình kiến trúc cụ thể của hệ thống cung điện thời Lý đã được nghiên cứu, phục dựng dựa trên những chứng tích dấu vết, hiện vật khảo cổ học được tìm thấy qua đợt khai quật năm 2002 – 2004. Cuộc khai quật tại khu vực xây dựng Nhà Quốc hội năm 2008 - 2009 sau đó đã cung cấp thêm nhiều tư liệu khoa học về kiến trúc cung điện thời Lý. Dựa trên các dấu vết khảo cổ, các nhà nghiên cứu đã dựng lại sơ đồ mặt bằng các công trình kiến trúc thời Lý.

Khoa học tái hiện “lầu son gác tía” thời Lý tại Hoàng thành Thăng Long sau 1.000 năm -0 Hình ảnh mặt bằng tổng thể của hệ thống cung điện thời Lý qua dấu vết khảo cổ.
Khoa học tái hiện “lầu son gác tía” thời Lý tại Hoàng thành Thăng Long sau 1.000 năm -0 Sơ đồ mặt bằng các công trình kiến trúc thời Lý.
Khoa học tái hiện “lầu son gác tía” thời Lý tại Hoàng thành Thăng Long sau 1.000 năm -0 Quy hoạch của hệ thống cung điện thời Lý trên bản đồ ngày nay.
Các khu khai quật tại khu vực 18 Hoàng Diệu được sơ đồ hóa gồm 5 khu A, B, C. D và E. Khu E chính là tòa nhà Quốc hội hiện nay. Đặt sơ đồ này trên bản đồ hiện nay có thể hình dung rõ hơn về quy hoạch của hệ thống cung điện thời Lý.
Tại lớp văn hóa thời Lý khai quật đã tìm thấy những móng trụ sỏi và chân tảng đá kê chân cột là bằng chứng khẳng định các công trình cung điện trong Hoàng cung Thăng Long đều là kiến trúc gỗ. Những móng trụ sỏi này cũng cho biết kỹ thuật móng công trình của các kiến trúc thời Lý rất độc đáo - trong đó kết hợp “cột dương” là cột bên trong lòng nhà và “cột âm” là cột hiên xung quanh nhà.
“Lầu son gác tía” Hoàng thành Thăng Long 1000 năm trước qua hình ảnh 3D -0 Sơ đồ kết cấu móng trụ dương và móng trụ âm.
Ngoài ra các nhà khảo cổ học còn xác định được các móng tường bao lớn và vững chãi là ranh giới giữa các khu kiến trúc. Bức tranh toàn cảnh về cung điện, lầu gác của thời Lý được hoàn thiện dần và tái hiện trên nền các vết tích khảo cổ học dưới lòng đất khu di tích 18 Hoàng Diệu và khu vực xây dựng Nhà Quốc hội. Đến nay các nhà khoa học đã nghiên cứu phục dựng được hình ảnh của 64 công trình kiến trúc thời Lý trong Hoàng cung Thăng Long - gồm 38 công trình kiến trúc cung điện và hành lang, 26 kiến trúc lục giác cùng hệ thống tường bao, đường đi và cổng ra vào công trình. Đây là một quần thể kiến trúc cung điện, lầu gác cực kỳ đặc sắc, được quy hoạch xây dựng rất bài bản, khoa học vào thời kỳ vàng son của vương triều Lý. Ở đây có nhiều công trình kiến trúc gỗ to lớn, hoành tráng, không thua kém so với các kiến trúc cung điện nổi tiếng ở châu Á.
Hình ảnh các công trình kiến trúc thời Lý ở Khu Trung tâm Hoàng thành Thăng Long đã hiện lên sau nghìn năm -0

Nghiên cứu những mảnh hiện vật gỗ tìm được, dựa trên những tài liệu ít ỏi từ minh văn, nghiên cứu chạm khắc gỗ ở các công trình khác cùng với nghiên cứu so sánh ở các công trình kiến trúc gỗ ở nước ngoài (Trung Quốc, Hàn Quốc, Nhật Bản), các nhà khoa học đã tìm thấy những nét tương đồng và điểm độc đáo khác biệt của kiến trúc gỗ ở Việt Nam.

5-1619582259413.jpg Các nhà khoa học nghiên cứu hiện vật, tư liệu, minh văn và đã xác định được hệ thống đấu - củng
Hình ảnh các công trình kiến trúc thời Lý ở Khu Trung tâm Hoàng thành Thăng Long đã hiện lên sau nghìn năm -0 Những nét tương đồng và điểm độc đáo khác biệt của kiến trúc gỗ ở Việt Nam

Cũng dựa trên nghiên cứu phục dựng và so sánh, các nhà khoa học đã xác định hệ thống “đấu - củng” được dung trong hoàng cung. Đây là một loại kết cấu đỡ mái gồm hai bộ phận cấu thành là "đấu" và "củng". "Đấu" đóng vai trò là bệ đỡ, còn “Củng” giống hình khuỷu tay, đóng vai trò là tay đỡ được dùng để đỡ một kết cấu khác bên trên.

Khoa học tái hiện “lầu son gác tía” thời Lý tại Hoàng thành Thăng Long sau 1.000 năm -0 Hệ thống đấu – củng
Trong nghiên cứu phục dựng hình ảnh công trình kiến trúc, nghiên cứu phục dựng phần khung - thân là khó khăn nhất vì không có nhiều tư liệu, do tuổi thọ của hiện vật kết cấu gỗ không cao như các dấu tích nền móng và bộ mái. Hệ thống kết cấu “đấu - củng” chính là “chìa khóa” mở ra khả năng phục dựng hình ảnh của các công trình kiến trúc gỗ. Hệ thống “đấu - củng” được sử dụng rất phổ biến và sáng tạo. Nhờ một hệ thống “đấu - củng” xếp chồng lên nhau mà có thể tăng được chiều cao của tầng mái và đưa mái vươn ra xa. Đây là phát hiện có ý nghĩa rất lớn, cung cấp cơ sở khoa học quan trọng trong việc nghiên cứu giải mã hình thái kiến trúc cung điện thời Lý.
Khoa học tái hiện “lầu son gác tía” thời Lý tại Hoàng thành Thăng Long sau 1.000 năm -0 Kết cấu hệ thống đỡ mái gồm “đấu” và “củng”.
Khoa học tái hiện “lầu son gác tía” thời Lý tại Hoàng thành Thăng Long sau 1.000 năm -0 Mô tả “đấu” và “củng” trong hệ thống đỡ mái.
Nghiên cứu mở rộng từ “chìa khóa đấu - củng” còn cho phép hiểu thêm về công dụng, loại hình, các phương pháp thi công, cách thức chế tạo và dựng cấu kiện… để có thể phục dựng phần khung - thân (gỗ), là phần quan trọng nhất, của công trình kiến trúc.
Khoa học tái hiện “lầu son gác tía” thời Lý tại Hoàng thành Thăng Long sau 1.000 năm -0 Mô tả phần mái của cung điện thời Lý
Từ đây, Viện Nghiên cứu Kinh thành đã nghiên cứu phục dựng được hình ảnh 3D hình thái kiến trúc cung điện thời Lý và đã phục dựng được hình ảnh 3D của 64 công trình kiến trúc trong mặt bằng tổng thể kiến trúc thời Lý. Công nghệ hình ảnh 3D cho phép nhìn hệ thống cung điện thời Lý từ nhiều chiều. Ảnh 17 là hình hệ thống cung điện nhìn từ phía bắc xuống phía nam. Lần đầu tiên hình ảnh về kiến trúc các cung điện thời Lý sau hơn 1000 năm được tái hiện rõ nét.
  • Khoa học tái hiện “lầu son gác tía” thời Lý tại Hoàng thành Thăng Long sau 1.000 năm - 0
  • Khoa học tái hiện “lầu son gác tía” thời Lý tại Hoàng thành Thăng Long sau 1.000 năm - 1
  • Khoa học tái hiện “lầu son gác tía” thời Lý tại Hoàng thành Thăng Long sau 1.000 năm - 2
  • Khoa học tái hiện “lầu son gác tía” thời Lý tại Hoàng thành Thăng Long sau 1.000 năm - 3

Phục dựng được hình ảnh 3D kiến trúc cung điện thời Lý.

Đặc biệt, trong quá trình khai quật ở khu C đã phát hiện một di tích kiến trúc bát giác có quy mô lớn, được xây dựng rất kiên cố cùng hệ thống hai cấp nền sân gạch. Dựa trên các dấu tích nền móng và suy đoán về kết cấu kiến trúc gỗ được dựng bằng hệ thống “đấu - củng”, các nhà khoa học đã phục dựng hình ảnh công trình lầu (tháp) bát giác rất đặc biệt và so sánh với công trình tương tự ở Trung Quốc.

Khoa học tái hiện “lầu son gác tía” thời Lý tại Hoàng thành Thăng Long sau 1.000 năm -0 Lầu bát giác so sánh với công trình ở Trung Quốc.
Khoa học tái hiện “lầu son gác tía” thời Lý tại Hoàng thành Thăng Long sau 1.000 năm -0
Tại các hố khai quật trong khu Hoàng thành đã tìm thấy số lượng lớn các hiện vật đầu rồng, mỏ phượng, chim uyên ương… bằng đất nung. Đây là những chi tiết trang trí phần mái của các công trình.
“Lầu son gác tía” Hoàng thành Thăng Long 1000 năm trước qua hình ảnh 3D -0 Các hiện vật tìm được trong hố khai quật.
Khoa học tái hiện “lầu son gác tía” thời Lý tại Hoàng thành Thăng Long sau 1.000 năm -0 Các hiện vật tìm được trong hố khai quật.
Từ hình khối và họa tiết trên các hiện vật, các nhà nghiên cứu đã dùng công nghệ dựng hình ảnh 3D của hình tượng Rồng thời Lý. Công chúng đã có thể tận mắt nhìn thấy hình tượng “Thăng Long - rồng bay lên” qua clip Hình tượng Rồng bay .
Khoa học tái hiện “lầu son gác tía” thời Lý tại Hoàng thành Thăng Long sau 1.000 năm -0 Phục dựng các chi tiết trang trí trên mái thông qua hiện vật.
Khoa học tái hiện “lầu son gác tía” thời Lý tại Hoàng thành Thăng Long sau 1.000 năm -0 Phục dựng hình ảnh rồng bay lên dựa trên các họa tiết của hiện vật khảo cổ.
Clip với hình ảnh đẹp, màu sắc sinh động, đươc dựng công phu đã thực sự gây xúc động, tự hào về chiều dài lịch sử - văn hóa hào hùng, lung linh của hơn một nghìn năm Thăng Long - Hà Nội.

Clip Thăng Long - Rồng bay lên.

Qua hình ảnh 3D được phục dựng, có thể nhìn rõ quy hoạch tổng thể, quy mô và công dụng của hệ thống công trình kiến trúc cung điện thời Lý. Chúng ta đã có hình dung rõ ràng hơn, cảm nhận sâu hơn về vẻ đẹp tráng lệ của kiến trúc trong Hoàng cung Thăng Long xưa, có thể tự hào khẳng định rằng Hoàng cung Thăng Long thời Lý được xây dựng với quy mô to lớn, nguy nga, tráng lệ. Từ đó có thể mường tượng về những sinh hoạt chính trị, văn hóa, xã hội ở triều đình phong kiến trung ương trong cả một giai đoạn. Lịch sử trở nên cụ thể và sinh động qua sơ đồ và hình ảnh.
“Lầu son gác tía” Hoàng thành Thăng Long 1000 năm trước qua hình ảnh 3D -1 Phỏng dựng kiến trúc lục giác
“Lầu son gác tía” Hoàng thành Thăng Long 1000 năm trước qua hình ảnh 3D -0 Hình ảnh 3D một cung điện thời Lý được phục dựng

“Lầu son gác tía” Hoàng thành Thăng Long 1000 năm trước qua hình ảnh 3D -2 Phỏng dựng bộ mái với những hình trang trí tinh xảo
“Lầu son gác tía” Hoàng thành Thăng Long 1000 năm trước qua hình ảnh 3D -3 Sơ đồ và thuật ngữ tên các cấu kiện trang trí bộ mái các cung điện thời Lý
Khoa học tái hiện “lầu son gác tía” thời Lý tại Hoàng thành Thăng Long sau 1.000 năm -0 Hình ảnh phục dựng Hoàng cung thời Lý đặt trên bản đồ ngày nay
Những kết quả nghiên cứu phục dựng mặt bằng tổng thể các công trình kiến trúc thời Lý là cơ sở tiền đề để quảng bá hình ảnh, phát huy hơn nữa giá trị của Di sản thế giới Khu trung tâm Hoàng thành Thăng Long - Hà Nội, giúp cho lịch sử có thể được “nhìn thấy” gần hơn.
Khoa học tái hiện “lầu son gác tía” thời Lý tại Hoàng thành Thăng Long sau 1.000 năm -0 Giới thiệu trưng bày, trình chiếu những thành tựu nghiên cứu của các nhà khoa học tại khu trưng bày khảo cổ học dưới tầng hầm Nhà Quốc hội.
Những thành tựu nghiên cứu của các nhà khoa học đã được giới thiệu trưng bày, trình chiếu tại khu trưng bày khảo cổ học dưới tầng hầm Nhà Quốc hội từ năm 2016.
Khoa học tái hiện “lầu son gác tía” thời Lý tại Hoàng thành Thăng Long sau 1.000 năm -0 Khu trưng bày khảo cổ học dưới tầng hầm Nhà Quốc hội từ năm 2016.
Đây là bảo tàng độc đáo nhất ở Việt Nam hiện nay và là bảo tàng hiện đại hàng đầu ở châu Á và trên thế giới. Chỉ trong hai năm 2017 - 2018, mặc dù chưa chính thức mở cửa phục vụ khách tham quan, nhưng Viện Nghiên cứu Kinh thành phối hợp với Văn phòng Quốc hội đã đón tiếp 13.780 lượt khách tham quan với 315 đoàn khách trong nước và quốc tế, trong đó có nhiều đoàn nguyên thủ quốc gia.

Ngày xuất bản: 28-4-2021

Tổ chức thực hiện: HỒNG MINH

Nội dung: NGÔ VƯƠNG ANH – TUYẾT LOAN

Ảnh và clip: Viện Nghiên cứu Kinh thành

Trình bày: ĐĂNG PHI - ĐỨC DUY

Có thể bạn quan tâm